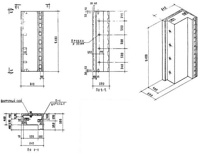
НБУ-7/6.22.4-3
Характеристики изделия:
| Параметр | Значение |
|---|---|
| Длина | 810 мм |
| Ширина | 590 мм |
| Высота | 2180 мм |
| Масса | 1440 кг |
| Нормативный документ | Серия 1.133-1 |
Цена:
Рассчитать стоимостьСтеновые легкобетонные блоки толщиной 40 см по Серии 1.133-1.
НБУ-7/6.22.4-3 Простеночный блок температурного шва.